A1 – Obchodní prostor v přízemí - Domácí potřeby
✔ plocha: 255 m²
✔ podlaží: obchod - přízemí / zázemí - 1np
✔ dispozice: prodejna se zázemím a skladem
✔ stav: připraveno k užívání
✔ dostupnost: obsazeno
✔ podlaží: obchod - přízemí / zázemí - 1np
✔ dispozice: prodejna se zázemím a skladem
✔ stav: připraveno k užívání
✔ dostupnost: obsazeno
Prostor je vhodný například pro:
obchod / showroom
obchod / showroom
Cena na vyžádání
A1 – Obchodní prostor - prodejna přízemí
Prostor se nachází v přízemí budovy s přímým vstupem z ulice. Díky své poloze na frekventované pěší trase nabízí výbornou viditelnost a přirozený pohyb lidí. Prostor je připraven k okamžitému využití.
✔ vlastní sociální zázemí (WC / kuchyňka)
✔ výloha do ulice
✔ samostatný vstup
✔ vytápění CZT
✔ výloha do ulice
✔ samostatný vstup
✔ vytápění CZT
možnost parkování ve vnitrobloku
parkování na ulici Bartošova / Soudní
parkování pro zákazníky
parkování na ulici Bartošova / Soudní
parkování pro zákazníky
A1 – Obchodní prostor - zázemí + sklad 1np
A2 – Gastro prostor v přízemí - street food
✔ plocha: 45 m²
✔ podlaží: bistro - přízemí / zázemí - suterén
✔ dispozice: bistro se zázemím a skladem
✔ stav: připraveno k užívání
✔ dostupnost: rezervováno
✔ podlaží: bistro - přízemí / zázemí - suterén
✔ dispozice: bistro se zázemím a skladem
✔ stav: připraveno k užívání
✔ dostupnost: rezervováno
Prostor je vhodný například pro:
bistro / kafé
bistro / kafé
Cena na vyžádání
Prostor se nachází v přízemí budovy s přímým vstupem z ulice. Díky své poloze na frekventované pěší trase nabízí výbornou viditelnost a přirozený pohyb lidí. Prostor je po kompletní rekonstrukci připraven k okamžitému využití.
✔ vlastní sociální zázemí (WC / sklad)
✔ výloha do ulice
✔ samostatný vstup
✔ vzduchotechnika s odsáváním
✔ výloha do ulice
✔ samostatný vstup
✔ vzduchotechnika s odsáváním
možnost parkování ve vnitrobloku
parkování na ulici Bartošova / Soudní
parkování pro zákazníky
parkování na ulici Bartošova / Soudní
parkování pro zákazníky
A3 – Obchodní prostor v přízemí
✔ plocha: 96 m²
✔ podlaží: obchod - přízemí
✔ dispozice: obchod se zázemím a skladem
✔ stav: připraveno k užívání
✔ dostupnost: k dispozici 9. 26.
✔ podlaží: obchod - přízemí
✔ dispozice: obchod se zázemím a skladem
✔ stav: připraveno k užívání
✔ dostupnost: k dispozici 9. 26.
Prostor je vhodný například pro:
obchod / showroom / servis
obchod / showroom / servis
Cena na vyžádání
Prostor se nachází v přízemí budovy v přední části vnitrobloku. Díky své poloze na frekventované pěší trase nabízí přirozený pohyb lidí. Prostor je po kompletní rekonstrukci připraven k okamžitému využití.
✔ vlastní sociální zázemí (WC / sklad)
✔ výloha do vnitrobloku
✔ samostatný vstup
✔ vytápění CZT
✔ výloha do vnitrobloku
✔ samostatný vstup
✔ vytápění CZT
možnost parkování ve vnitrobloku
parkování na ulici Bartošova / Soudní
parkování pro zákazníky
parkování na ulici Bartošova / Soudní
parkování pro zákazníky
A4 – Obchodní prostor v přízemí
✔ plocha: 96 m²
✔ podlaží: obchod - přízemí
✔ dispozice: obchod se zázemím
✔ stav: připraveno k užívání
✔ dostupnost: k dispozici 6. 26.
✔ podlaží: obchod - přízemí
✔ dispozice: obchod se zázemím
✔ stav: připraveno k užívání
✔ dostupnost: k dispozici 6. 26.
Prostor je vhodný například pro:
obchod / showroom / servis
obchod / showroom / servis
Cena na vyžádání
Prostor se nachází v přízemí budovy v zadní části vnitrobloku. Díky své poloze na frekventované pěší trase nabízí přirozený pohyb lidí. Prostor je po kompletní rekonstrukci připraven k okamžitému využití.
✔ vlastní sociální zázemí (WC / sklad)
✔ samostatný vstup
✔ vytápění CZT
✔ samostatný vstup
✔ vytápění CZT
možnost parkování ve vnitrobloku
parkování na ulici Bartošova / Soudní
parkování pro zákazníky
parkování na ulici Bartošova / Soudní
parkování pro zákazníky
B1 – Kancelářský prostor - 1np
✔ plocha: 225 m²
✔ podlaží: kanceláře - 1np
✔ dispozice: kanceláře se zázemím
✔ stav: připraveno k užívání
✔ dostupnost: obsazeno
✔ podlaží: kanceláře - 1np
✔ dispozice: kanceláře se zázemím
✔ stav: připraveno k užívání
✔ dostupnost: obsazeno
Prostor je vhodný například pro:
kancelář / ordinace
kancelář / ordinace
Cena na vyžádání
Prostor se nachází v 1np přední části budovy. Díky své poloze na frekventované pěší trase nabízí přirozený pohyb lidí. Prostor je připraven k okamžitému využití.
✔ vlastní sociální zázemí (WC)
✔ společný vstup
✔ vytápění CZT
✔ společný vstup
✔ vytápění CZT
možnost parkování ve vnitrobloku
parkování na ulici Bartošova / Soudní
parkování pro zákazníky
parkování na ulici Bartošova / Soudní
parkování pro zákazníky
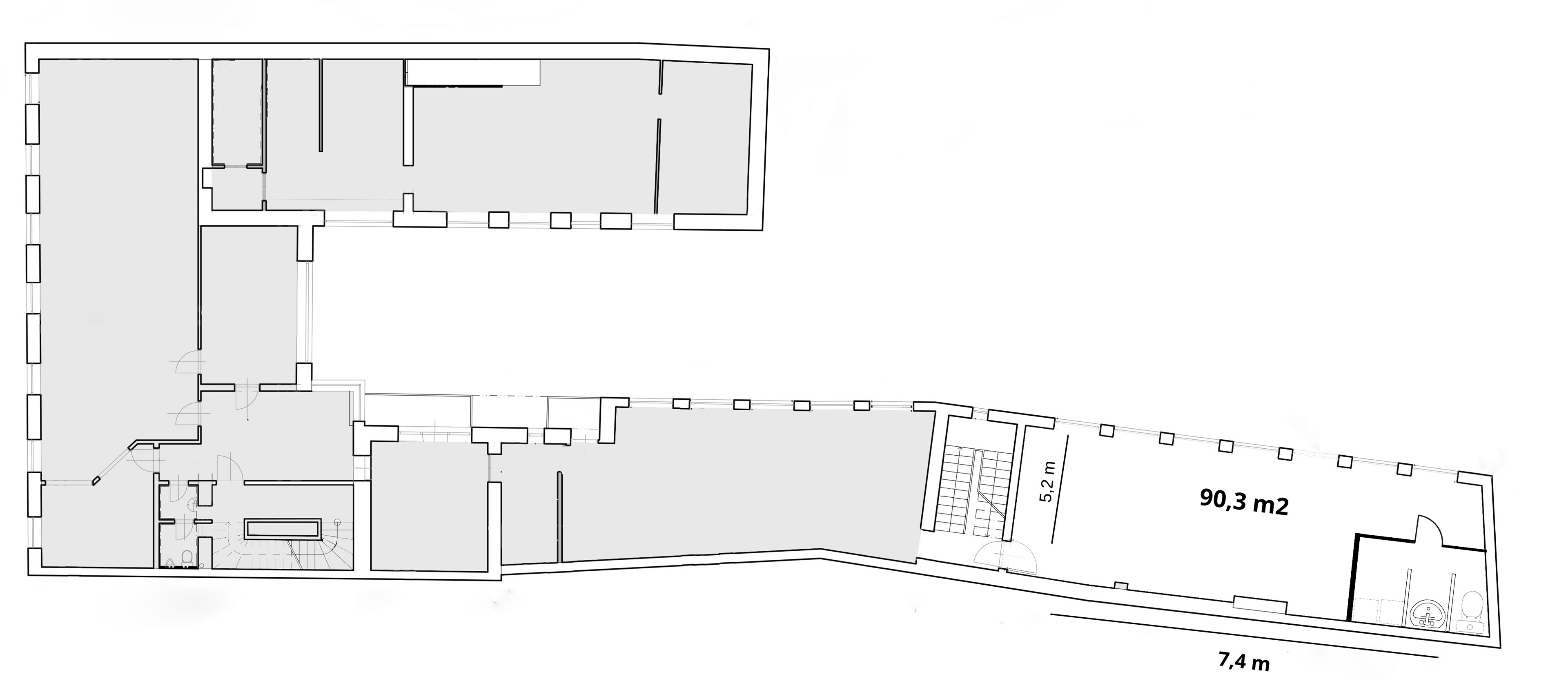
B2 – Nebytový prostor - 1np
✔ plocha: 90 m²
✔ podlaží: nebytový prostor - 1np
✔ dispozice: prostor se zázemím
✔ stav: připraveno k užívání
✔ dostupnost: k dispozici 6. 26.
✔ podlaží: nebytový prostor - 1np
✔ dispozice: prostor se zázemím
✔ stav: připraveno k užívání
✔ dostupnost: k dispozici 6. 26.
Prostor je vhodný například pro:
kancelář / salón / služby
kancelář / salón / služby
Cena na vyžádání
Prostor se nachází v 1np zadní části budovy. Díky své poloze na frekventované pěší trase nabízí přirozený pohyb lidí. Prostor je připraven k okamžitému využití.
✔ vlastní sociální zázemí (WC)
✔ společný vstup
✔ vytápění CZT
✔ společný vstup
✔ vytápění CZT
možnost parkování ve vnitrobloku
parkování na ulici Bartošova / Soudní
parkování pro zákazníky
parkování na ulici Bartošova / Soudní
parkování pro zákazníky
C1 – Nebytový prostor - 2np
✔ plocha: 90 m²
✔ podlaží: nebytový prostor - 2np
✔ dispozice: prostor se zázemím
✔ stav: připraveno k užívání
✔ dostupnost: k dispozici 6. 26.
✔ podlaží: nebytový prostor - 2np
✔ dispozice: prostor se zázemím
✔ stav: připraveno k užívání
✔ dostupnost: k dispozici 6. 26.
Prostor je vhodný například pro:
kancelář / salón / služby
kancelář / salón / služby
Cena na vyžádání
Prostor se nachází v 1np zadní části budovy. Díky své poloze na frekventované pěší trase nabízí přirozený pohyb lidí. Prostor je připraven k okamžitému využití.
✔ vlastní sociální zázemí (WC)
✔ společný vstup
✔ vytápění CZT
✔ společný vstup
✔ vytápění CZT
možnost parkování ve vnitrobloku
parkování na ulici Bartošova / Soudní
parkování pro zákazníky
parkování na ulici Bartošova / Soudní
parkování pro zákazníky